
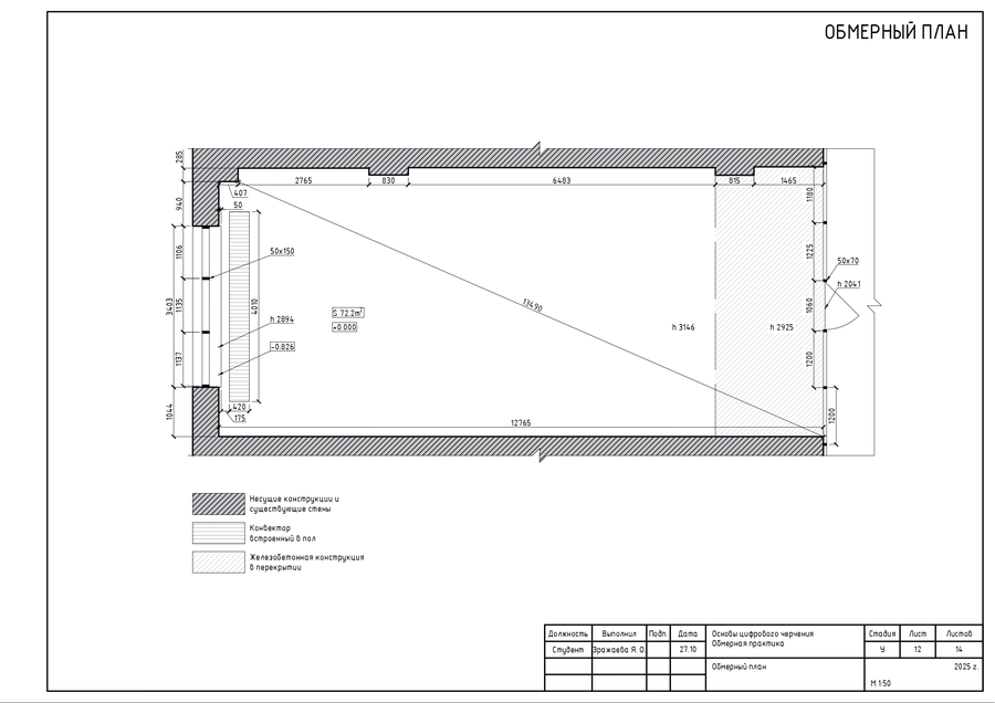
В проекте были изучены основные функций программы AutoCAD. Альбом состоит из упражнений, планов помещения, находящегося в Канатном цехе с водонапорной башней завода «Красный гвоздильщик», новом корпусе НИУ ВШЭ, а также из плана возводимых перегородок для проекта учебного кластера, который находиться в г. Москва, ул. Малая пионерская, 12.