
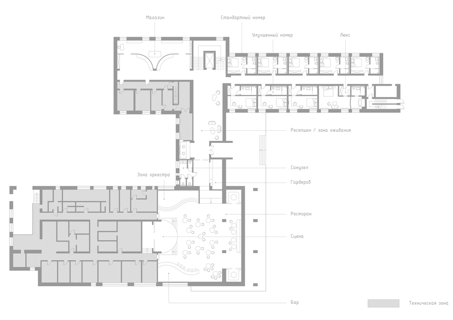
Джазовая музыка, танцы и театральное искусство… Кабаре — это место, которое наполненно яркими огнями и живыми выступлениями, в котором каждый вечер превращается в незабываемое шоу.
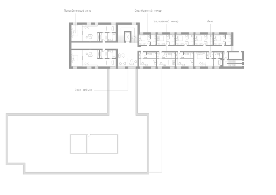
Отель «Nocturne» погружает в атмосферу золотой эпохи кабаре, сочетая в себе элементы стиля арт-деко и бурлеска. В проекте были использованы культовые предметы дизайна, которые несут в себе историческую ценность и помогают создать особую атмосферу шика и уюта.


