
Проект интерьера для студенческого кластера, в котором комфортно погрузиться в работу, а также отдохнуть от учебы. Целью являлось создание среды, где студенты могли бы работать в благоприятных для творчества условиях. Важным элементом является цветовая палитра, которая располагает к продуктивности и не надоедает глазу.
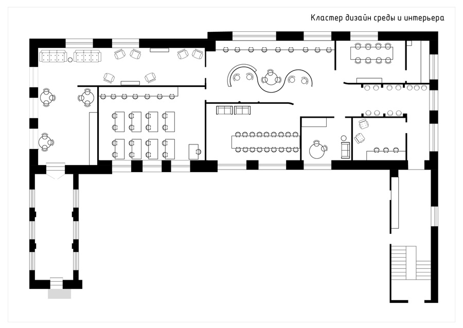
План и зонирование
Компьютерный класс

Фронтальный вид

Детали
Коворкинг

Коворкинг является открытым пространством, который соединяет коридор и аудитории. Здесь можно как и отдохнуть, так и поработать за общим столом или за отдельным местом.
Визуализации
Зона отдыха
Эта зона является пространством для отдыха. Здесь расположены диваны и столики, а также coffee point.
Класс арт-практики
Конференц-зал
Комната для преподавателей
Комната для тихого отдыха