
В самом сердце Старицы — тихого города на берегу Волги, окутанного туманами, монастырскими колоколами и шепотом старых дубов — стоит Дом, не подвластный времени. Здесь не говорят громко, здесь слышат свет, чувствуют пространство, и верят, что искусство может быть домом. «Мозаика жизни» — поэтичный коворкинг-музей, где четыре великих русских художника обрели свой временный, но живой дом.
История, вплетённая в стены

Аналитика

Старица — город в Тверской области России, стоящий на Волге, с богатейшей историей, культурой и уникальной идентичностью.
Население: 6 640 человек Площадь: 7,65 км²
— Имеет богатый историко-культурный потенциал, город сохранил свою аутентичность.
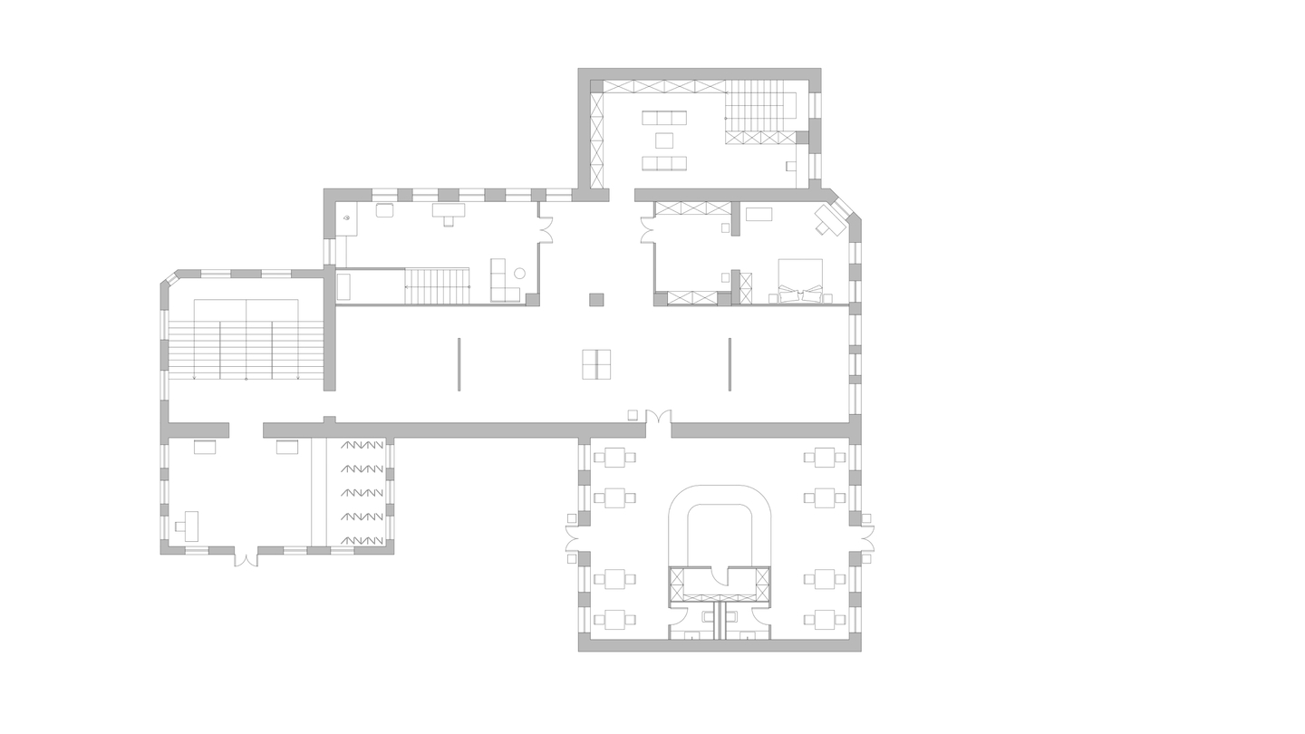
— Подоснова — здание швейной фабрики
CJM карта
План зонирования
Планировочное решение
Выставочное пространство
Комната И. И. Шишкина
Комната И. Е. Репина
Комната В. Д. Поленова
Комната В. М. Васнецова
Библиотека
Кафе