Основные требования:
— Продумать авторское решение по модульному хранению для экспонируемых элементов.
— В экспозиции необходимо предусмотреть доступные в производстве материалы, которые могли бы быть использованы вторично (например, экспонироваться на других площадках).
— Предусмотреть гибкость при экспонировании тех или иных объектов на выставочных модулях.
Концепция
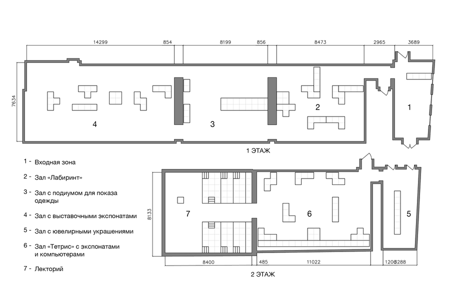
Пространство спроектировано для итоговой выставки Школы дизайна НИУ ВШЭ. За визуальную метафору взята всем известная игра «Тетрис». Однако, от игры взяты только ее классические фигуры. А цветовое решение выполнено в фирменном синем оттенке Высшей школы экономики. В качестве основного материала, в котором выполнена вся выставка, используется ДСП.
Все выставочное пространство складывается по единой модульной сетке. В качестве модуля служит ящик размером 60*60 см. Ящики легко интегрируются в различные формы, что даёт гибкость при экспонировании.
Все ящики можно собирать и разбирать, что делает выставку мобильной. А также в них можно транспортировать экспонаты.
Зал № 4
Зал «Тетрис»
Зал «Тетрис»
Зал с подиумом
Лекторий
Лекторий
Ящик — модуль
Выставочное оборудование




