
Выставка отображает периоды творчества Луиджи Руссоло, в каждом из которых вы увидите как менялось его видение на мира, которое он отображал на своих полотнах, а также сможете увидеть влияние его музыки на современников.
Архитектурная часть
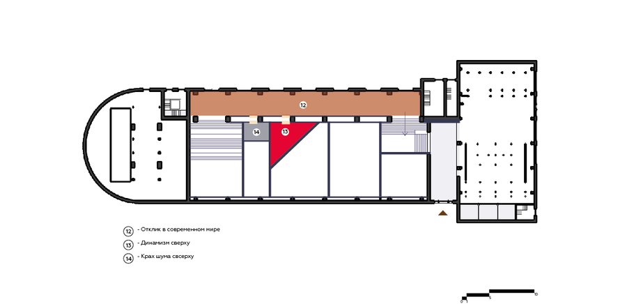
Графическая часть